Portafolio de Ingenierías desarrolladas

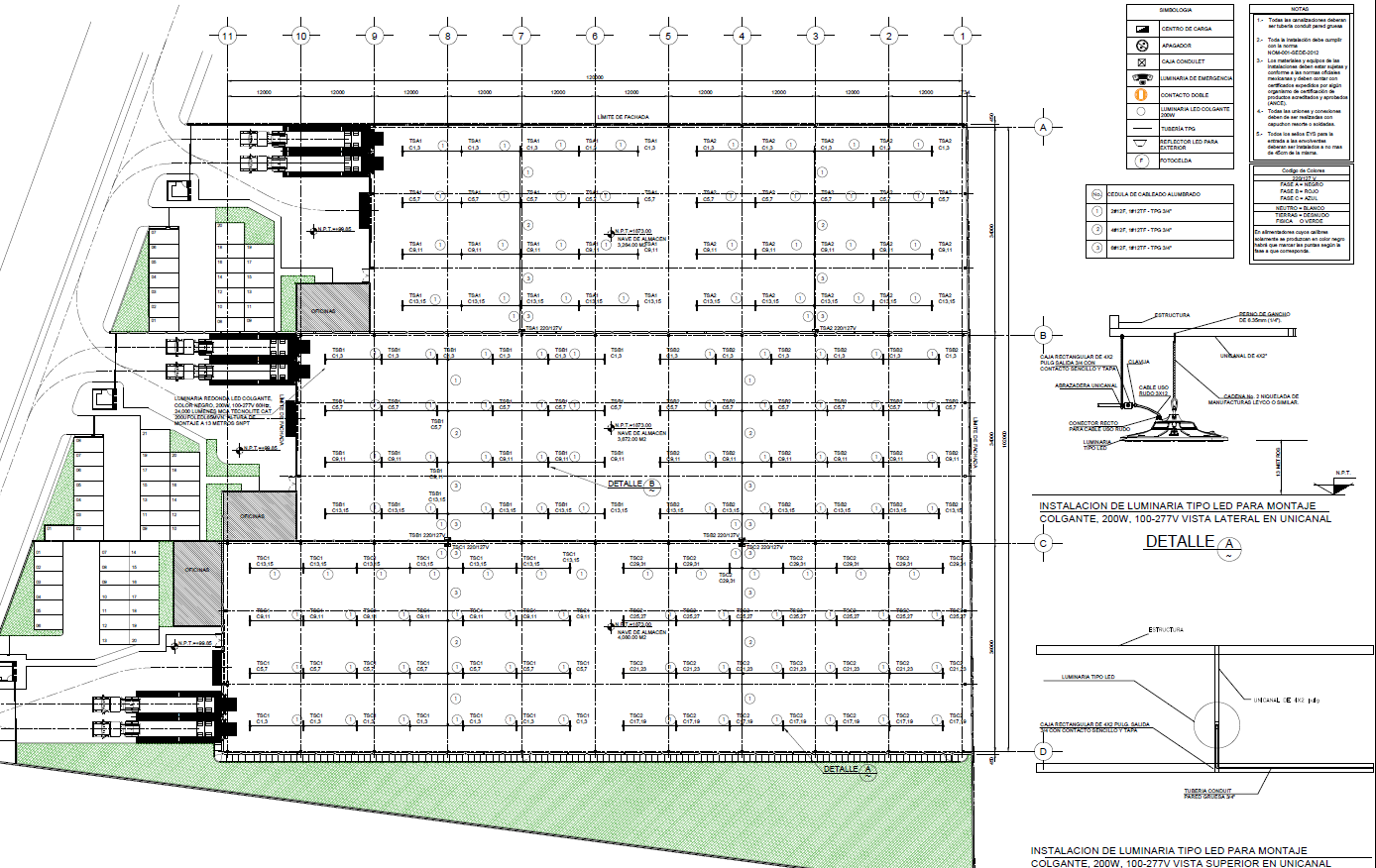
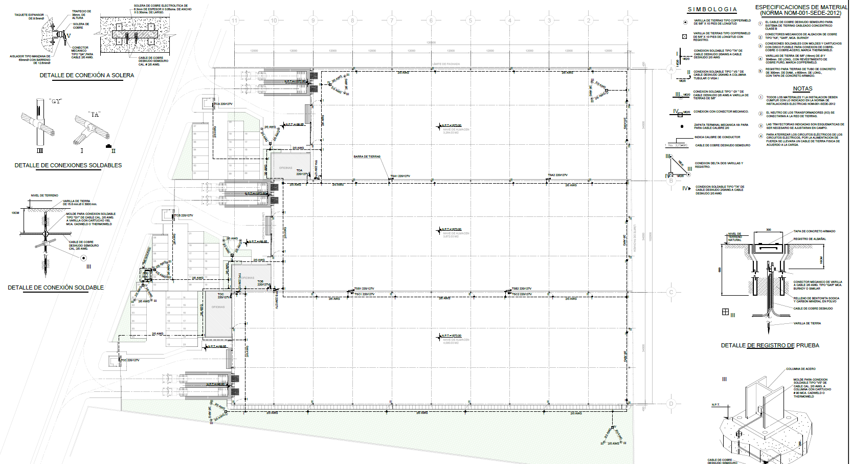
Naves Industriales

Diseño eléctrico de patio industrial con las áreas:

-Nave de producción

-Mantenimiento

-Oficinas

-Residuos peligrosos

-Lavado

-Estacionamiento

-Red de media tensión

-Fuerza baja tensión

Parque industrial, León GTO

-Alimentación de equipos

-Sistema puesta a tierra

-Pararrayos

-Alumbrado

-Contactos

-Aire acondicionado

-Catálogo de materiales

-Cuadros de carga

-Diagrama unifilar

-Memoria de cálculo

Diseño eléctrico de parque industrial con las áreas:

-Nave

-Oficinas

-Estacionamiento

-Acometida media tensión

-Fuerza baja tensión

-Alimentación de equipos

Parque Industrial, Aguascalientes AGS

-Sistema puesta a tierra

-Pararrayos

-Alumbrado

-Contactos

-Aire acondicionado

-Catálogo de materiales

-Cuadros de carga

-Diagrama unifilar

-Memoria de cálculo

-Revisión de Ingeniería existente de nave de producción con oficinas.

-Adaptación a normas vigentes mexicanas

-Complementar trayectorias y cédulas de conductores

-Red media tensión

-Fuerza baja tensión

-Alimentación de equipos

Revisión y adaptación de Ingeniería Existente, Salinas Victoria NL

-Alumbrado

-Contactos

-Oficinas

-Cuartos de servicio

-Catálogo de materiales

-Cuadros de carga

-Diagrama unifilar

-Memoria de cálculo

-Diseño eléctrico de ampliación de nave

-Fuerza baja tensión

-Sistema puesta a tierra

-Pararrayos

-Alumbrado

-Contactos

Ampliación de Nave, Celaya GTO

-Catálogo de materiales

-Cuadros de carga

-Diagrama unifilar

-Memoria de cálculo

-Diseño eléctrico de almacén áreas clasificadas

-Fuerza baja tensión

-Sistema puesta a tierra

-Pararrayos

Almacén Áreas Clasificadas, Celaya GTO

-Alumbrado

-Catálogo de materiales

-Cuadros de carga

-Diagrama unifilar

-Memoria de cálculo

-Diseño eléctrico de nave industrial de producción

-Fuerza baja tensión

-Sistema puesta a tierra

-Pararrayos

-Oficinas

-Cuartos de servicio

Nave Industrial, Azcapotzalco CDMX

-Alumbrado

-Contactos

-Catálogo de materiales

-Cuadros de carga

-Diagrama unifilar

-Memoria de cálculo

Levantamiento de Instalaciones

-Levantamiento de Instalaciones eléctricas existentes en planta de producción para cumplimiento de auditoria de la STPS

-Acometida media tensión

-Fuerza baja tensión

Levantamiento de Nave de Producción, Apocada NL

-Alimentación de líneas de producción

-Alumbrado

-Contactos

-Oficinas

-Diagrama unifilar

-Levantamiento de Instalaciones eléctricas existentes en nave de producción para reubicar e incrementar la capacidad de la subestación

-Red media tensión

-Fuerza baja tensión

-Redistribución de alimentadores de máquinas

Levantamiento para incremento de Subestación, García NL

-Cuarto de subestación eléctrica

-Diagrama Unifilar

-Lectura de resistividad del terreno

-Malla de tierras para subestación

-Estudio de cortocircuito

-Coordinación de protecciones

-Levantamiento de Instalaciones eléctricas existentes en planta de producción para cumplimiento de auditoria de la STPS

-Acometida media tensión

-Fuerza baja tensión

-Alimentación andenes de embarque

Levantamiento nave de logística, Monterrey NL

-Comedor

-Oficinas

-Alumbrado

-Contactos

-Oficinas

-Aire acondicionado

-Diagrama unifilar

-Levantamiento de las Instalaciones eléctricas existentes para la modernización del cuarto de control y la generación de nuevas trayectorias de alimentación a los equipos

-Fuerza baja tensión

-Red general de charolas de alimentación

-Redistribución de alimentadores de máquinas

Levantamiento en Cementera para modernización de cuarto eléctrico, Higaldo

-Diagrama Unifilar

-Alumbrado y contactos del cuarto de control nuevo

-Sistema de tierras del cuarto de control

-Catálogo de materiales

-Memorias de cálculo

Torre de Departamentos

-Diseño eléctrico de torre departamental de 10 niveles con 15 departamentos, 2 estacionamientos y amenidades.

-Acometida media tensión

-Fuerza baja tensión

-Sistema puesta a tierra

-Pararrayos

-Planta de emergencia

Torre departamental 10 niveles, San Pedro NL

-Alumbrado

-Contactos

-Aire acondicionado

-Catálogo de materiales

-Cuadros de carga

-Diagrama unifilar

-Memoria de cálculo

-Diseño eléctrico de torre departamental de 5 niveles con 24 departamentos, 2 estacionamientos y amenidades.

-Acometida media tensión

-Fuerza baja tensión

-Sistema puesta a tierra

-Pararrayos

Torre departamental 5 niveles, Santa Catarina NL

-Alumbrado

-Contactos

-Aire acondicionado

-Catálogo de materiales

-Cuadros de carga

-Diagrama unifilar

-Memoria de cálculo

-Diseño eléctrico de torre departamental de 3 niveles con 18 departamentos y áreas comunes.

-Acometida media tensión

-Fuerza baja tensión

-Sistema puesta a tierra

-Pararrayos

Torre departamental 3 niveles, Apodaca NL

-Alumbrado

-Contactos

-Aire acondicionado

-Catálogo de materiales

-Cuadros de carga

-Diagrama unifilar

-Memoria de cálculo

-Diseño eléctrico de torres departamentales de 50 niveles con +450 departamentos, estacionamientos y áreas de amenidades.

-Acometida múltiple para las torres en media tensión

-Fuerza baja tensión como conjunto y por torre

-Sistema puesta a tierra

-Pararrayos

Desarrollo turístico residencial

-Alumbrado

-Contactos

-Aire acondicionado

-Servicios generales de amenidades

-Catálogo de materiales

-Cuadros de carga

-Diagrama unifilar

-Memoria de cálculo

Oficinas

-Diseño eléctrico de edificios para  oficinas administrativas.

-Fuerza baja tensión

-Sistema puesta a tierra

-Pararrayos

-Estudio de cortocircuito

-Coordinación de protecciones

Nuevo edificio de Oficinas, Ramos Arizpe COAH

-Alumbrado

-Contactos

-Aire acondicionado

-Catálogo de materiales

-Cuadros de carga

-Diagrama unifilar

-Memoria de cálculo

-Revisión de Ingeniería Eléctrica existente de nivel de oficinas para autorización por el edificio corporativo y poder construir

-Alumbrado

-Contactos

Nivel de Oficinas, Monterrey NL

-Aire acondicionado

-Cuadros de carga

-Diagrama unifilar

-Diseño eléctrico de oficinas en torre corporativa para oficinas.

-Acometida baja tensión

-Alumbrado

-Contactos

Oficinas Administrativas, Monterrey NL

-Aire acondicionado

-Cuadros de carga

-Diagrama unifilar

-Memoria de cálculo

-Diseño eléctrico de oficinas corporativas 

-Fuerza baja tensión

-Modelado de Fotometría con plano de sembrado de alumbrado resultante

Oficinas Corporativas, EdoMex

-Alumbrado

-Contactos

-Aire acondicionado

-Cuadros de carga

-Diagrama unifilar

Giro comercial

-Diseño eléctrico de local prototipo de Ingeniería Eléctrica para cadena de alimentos en todas las sucursales

-Acometida baja tensión

-Alimentación de equipos extracción

-Alimentación de equipos inyección

Cadena de comida, Monterrey NL

-Alumbrado

-Contactos

-Aire acondicionado

-Cuadros de carga

-Diagrama unifilar

-Memoria de cálculo

-Diseño eléctrico de local prototipo de Ingeniería Eléctrica para cadena de alimentos en todas las sucursales

-Acometida baja tensión

-Alimentación de equipos extracción

-Alimentación de equipos inyección

Cadena de Pizzerías en NL

-Alumbrado

-Contactos

-Aire Acondicionado

-Cuadros de carga

-Diagrama unifilar

-Memoria de cálculo

-Revisión de Ingeniería Eléctrica existente para autorización por la plaza y poder construir

-Alumbrado

-Contactos

Local Boutique, Monterrey NL

-Aire acondicionado

-Cuadros de carga

-Diagrama unifilar

-Diseño de Ingeniería Eléctrica para un aditorio de eventos

-Alumbrado

-Contactos

-Alimentación aire acondicionado

Auditorio, Monterrey NL

-Fuerza principal

-Cuadros de carga

-Diagrama unifilar

-Memoria de cálculo

-Catálogo de materiales

-Diseño de Ingeniería Eléctrica para un agencia de autos

-Alumbrado

-Contactos

-Alimentación aire acondicionado

Agencia de autos, NL

-Fuerza principal

-Cuadros de carga

-Diagrama unifilar

-Memoria de cálculo

-Catálogo de materiales

Ingeniería con supervisión de obra

-Diseño eléctrico de departamentos de 4 niveles con 28 recámaras, 3 oficinas y amenidades

-Supervisión online semanal

-Supervisión física programada en obra

-Acometida media tensión

-Fuerza baja tensión

-Planta de emergencia

-Cuarto de máquinas

-Sistema puesta a tierra

-Pararrayos

Departamentos para Coliving, Puerto escondido OAX

-Alumbrado

-Contactos

-Aire acondicionado

-Catálogo con volumetría de materiales

-Cuadros de carga

-Diagrama unifilar

-Memoria de cálculo

-Seguimiento a verificación con UVIE

Residencias

-Revisión de Ingeniería Eléctrica existente para reingeniería de residencias con subestación

-Acometida media tensión

-Fuerza baja tensión

-Sistema puesta a tierra

-Pararrayos

Residencia 700m2, Monterrey NL

-Alumbrado

-Contactos

-Aire acondicionado

-Cuadros de carga

-Diagrama unifilar

-Memoria de cálculo

-Diseño y cálculo del alumbrado víal para el fraccionamiento

-Cálculo de niveles de iluminación con fotometría 

Alumbrado de fraccionamiento, Santiago NL

-Plano de alumbrado

-Memoria de cálculo

-Gráficas de niveles fotométricos

-Revisión de Ingeniería Eléctrica existente para reingeniería de residencias con subestación

-Acometida media tensión

-Fuerza baja tensión

-Sistema puesta a tierra

-Pararrayos

Residencia 1,500m2, Santiago NL

-Alumbrado

-Contactos

-Aire acondicionado

-Cuadros de carga

-Diagrama unifilar

-Memoria de cálculo

Information icon

Necesitamos su consentimiento para cargar las traducciones

Utilizamos un servicio de terceros para traducir el contenido del sitio web que puede recopilar datos sobre su actividad. Por favor revise los detalles en la política de privacidad y acepte el servicio para ver las traducciones.